
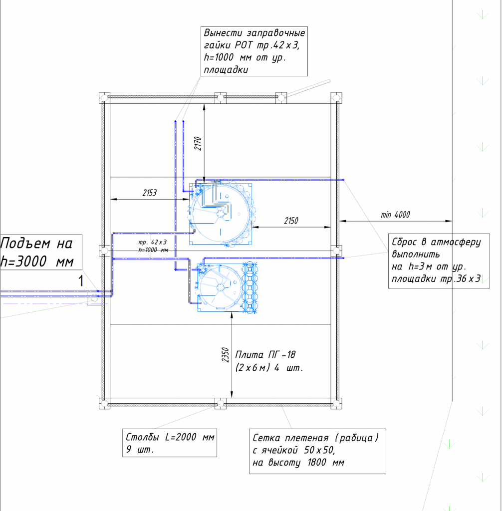
В ходе реализации проекта обеспечения медицинскими газами инфекционного отделения в парке «Патриот» были установлены и смонтированы два мобильных газификатора (MicroBulk). Данный тип газификаторов – оптимальное решение при условии минимальных сроков реализации проекта.

Монтаж источников систем медицинского для
размещения инфекционного отделения в парке
«Патриот», Одинцовский район
Основными преимуществами применения микробалков является их готовность к работе сразу же после разгрузки.
Во-первых, для установки такого типа газификаторов не требуется выполнять фундаментные работы, подойдет плоское твердое основание, например, бетонные плиты.
Во-вторых, система MicroBulk позволяет существенно сэкономить на арматуре, времени обвязки и подготовительных работах на площадке. Это связано с тем, что емкости поставляются полностью укомплектованными, необходимо только подключить трубопровод от потребителей.
Емкость включает:
- оборудование для поддержания рабочего давления в заданном диапазоне;
- продукционный испаритель для подачи газообразного продукта потребителю;
- всю необходимую арматуру и предохранительные устройства.
Данное решение подходит для обеспечения любимыми сжиженными газами (азот, аргон, углекислота, кислород) в различных сферах применения и отраслях промышленности. Для заправки могут быть использованы распространенные в России емкости типа ЦТК, а также транспортные емкости, оснащенные криогенным насосом.

Дополнительно может быть оснащена автоматизированной системой управления.
Узнать подробнее об автоматизированной дистанционной системе управления газовым хозяйством по ссылке https://temp.gas-solutions.ru/articles/avtomatizirovannaya-distancionnaya-sistema-upravleniya-gazovym-hozyajstvom/
Подробный видеобзор по этому проекту смотрите по ссылке https://temp.gas-solutions.ru/video/ustanovka-i-zapravka-kriogennyh-emkostej-dlya-kisloroda/
Больше фотографий с проекта по ссылке https://temp.gas-solutions.ru/news/gospital-pri-parke-patriot-osnashhen-kislorodom/
Справка. Проект реализован совместно с компанией «Мониторинг Вентиль и Фитинг». Криогенные емкости европейского производителя Auguste Cryogenics, Словакия
Получить бесплатную консультацию по вашему проекту:
Присылайте запрос на почту sale@gas-solutions.ru