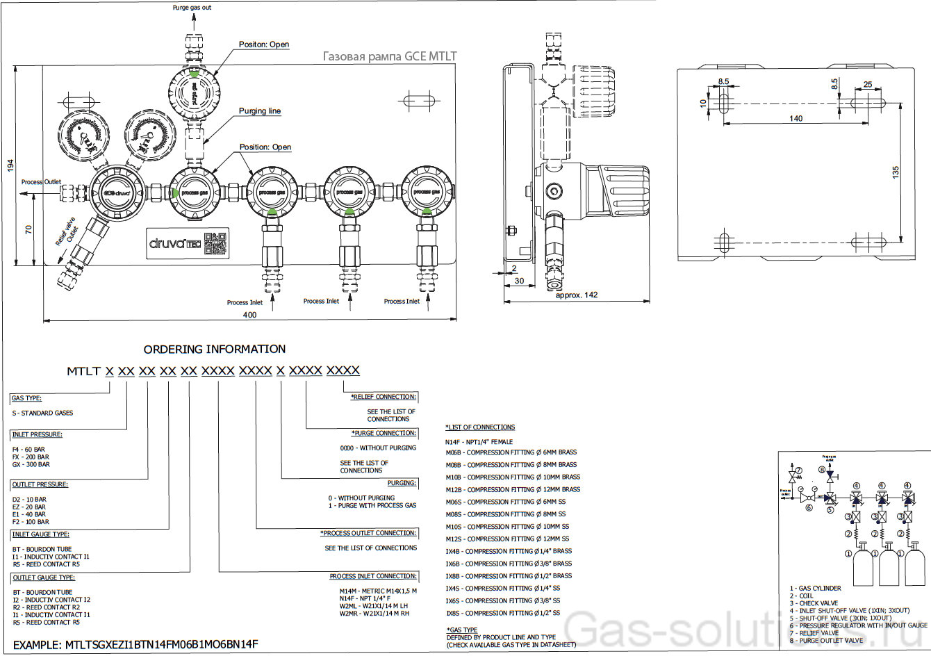
Описание товара
Основные характеристики
| Входное давление (бар), max | 300 |
| Выходное давление (бар)20 | 10 |
| 20 | |
| 40 | |
| 100 | |
| — | |
| — | |
| Максимальный расход | 20 м3/ч (номинал) |
| Рабочая температура (°C) | -20 — +60 |
| Материал корпуса | Латунь |
| Материал мембраны | Hastelloy |
| Материал уплотнения | PCTFE |
| Соединение (баллоны/моноблоки) | 3 |
| Габаритные размеры Д´Ш´В (мм), max | 400х142х194 |
| Вес (кг) | 6,8 |
| Артикул |
Монтируется на консоли* из нержавеющей стали и состоит из:
- редуктор давления
- манометр на входе и выходе
- защитный клапан
- продувочный клапан – доп. опция/согласно артикулу
- блок переключения между баллонами/моноблоками
- гибкий шланг (РВД)
- тип резьбы на вход и выход — в соответствии с запросом
* Состоит из двух панелей – в передней есть монтажное отверстие для замены манометров, есть заземление
Вы можете купить Газовая рампа GCE MTLT в нашем магазине. Наш телефон +7 (925) 482-30-01. Мы работаем по Москве, Московской области и по всем регионам РФ!


















